Beispielwohnungen
Wie sehen unsere Wohnungen aus?
Hier finden Sie einige Wohnungen, wie sie beispielhaft für den Bestand der GWG „Eigene Scholle“ eG sind.
„Ich freue mich sehr, dass vom Altersdurchschnitt her ein gut durchmischtes Wohngebiet entstanden ist.“
Volker Enders
– Vorstandsvorsitzender –
2-Raumwohnung
Wohnungen mit Ausblick
Beispiel: Rockendorfer Weg
Das Wohnungsbeispiel zeigt Ihnen eine 2-Raum-Wohnung im Rockendorfer Weg, eine Straße in unseren Wohngebieten 2 und 3.
Vom Balkon bzw. der Terrasse aus haben Sie einen Ausblick ins Grüne – Wäscheplätze und Spielmöglichkeiten für die Kinder und Enkelkinder gehören dazu.
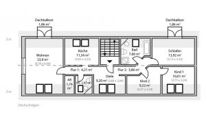
2-Raumwohnung Dachgeschoss
3-Raumwohnung
Freundliche Zugänge
Beispiel: obere Diesterwegstraße
Viele unserer Häuser haben kleine Vorgärten. Von Mietern gepflegt, bieten sie für Passanten ganzjährig ein freundliches Bild der GWG. Das Kümmern um die Außenbereiche ist eine von verschiedenen Möglichkeiten, sich genossenschaftlich zu engagieren.
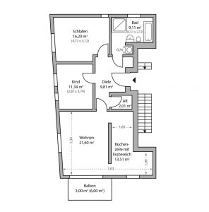
4-Raumwohnung
Behaglich wohnen, in guter Nachbarschaft
Beispiel: untere Diesterwegstraße
Auch wenn die Mehrzahl unserer Wohnungen dem steigenden Bedarf an Single- bzw. 2-Personenhaushalten gerecht wird, bietet die GWG auch genügend Platz für Familien. Unsere 4-Raum-Wohnungen sind ein Beispiel.
Durch den Mix an Wohnungsgrößen und -typen ist eine gesunde Mischung von Jung und Alt in den vier Wohngebieten entstanden. Und das bereits seit neun Jahrzehnten!
























































